このブロックは画面サイズによって見た目が変化する特殊なブロックです
※編集・削除ができる項目も画面サイズによって異なります

詳細はヘルプページの「フローティングメニューブロックの編集」をご確認ください
受付時間:10:00〜18:00
定休日:水曜日

新春初売りモデルハウス販売会の概要

日にち
2026/1/24(土)~2/15(日)10:00~17:00
時間
❶10:00〜 ❷11:00〜 ❸13:00〜 ❹14:00〜 ❺15:00〜 ❻16:00〜 
場所
ふじが丘・猪野・中判田・古ヶ鶴
キャンペーンについて
諸条件があります。お申し込み前に下記フォームにあるキャンペーン詳細および注意事項を必ずご確認ください。
見出し
ここをクリックして表示したいテキストを入力してください。テキストは「右寄せ」「中央寄せ」「左寄せ」といった整列方向、「太字」「斜体」「下線」「取り消し線」、「文字サイズ」「文字色」「文字の背景色」など細かく編集することができます。
※諸条件があります。お申し込み前に下記フォームにあるキャンペーン詳細および注意事項を必ずご確認ください。
余白(20px)

【安心の住宅性能】

■長期優良住宅認定建物 
■耐震等級3
■断熱等級5
■一次エネルギー消費量等級6
■C値1.2 / Ua値0.53
■無垢床 / 全面漆喰壁
余白(40px)

販売中のモデルハウス一覧

ふじが丘
ほっこり落ち着くノスタルジーな平屋のおうち
販売価格:3,780万円(税込)
猪野
愛車と暮らすガレージハウス
販売価格:4,790万円(税込)
中判田
お一人様のためのスマートデザイン。
販売価格:3,380万円(税込)
古ヶ鶴
開放感あふれる吹き抜けのある暮らし
販売価格:4,300万円(税込)
小見出し
ここをクリックして表示したいテキストを入力してください。テキストは「右寄せ」「中央寄せ」「左寄せ」といった整列方向、「太字」「斜体」「下線」「取り消し線」、「文字サイズ」「文字色」「文字の背景色」など細かく編集することができます。

ほっこり落ち着くノスタルジーな平屋のおうち

物件情報

  • 3SLDK
  • 敷地面積:286.55㎡(86.68坪)
  • 建築面積:81.98㎡(24.7坪)
  • おすすめ

■子育てママが考えた家事ラクな動線も見どころです。嬉しいエアコン付き。

■2台以上駐車可能!ゆとりをもった敷地の広さです。

■玄関にはほっこり寛げる小上がりのヌックも。

  • 販売価格
  • 3,780万円
  • (税込)

間取り図

喫茶店のような時間が流れるダイニング。

ダイニング

ダイニングの壁は一部板張りにすることで、温もりのある心安らぐ空間を演出しています。

キッチン

水まわりも一直線!お料理しながらちゃちゃっと家事を済ませることが可能に!
余白(40px)

愛車と暮らすガレージハウス

物件情報

  • 3LDK
  • 敷地面積:199.54㎡(60.36坪)
  • 建築面積:128.10㎡(38.75坪)
  • おすすめ

■リビングから愛車を眺めることができる車好きにはたまらないガレージハウス

■モデルハウスの家具インテリア・エアコン付き

■子育て環境にぴったりな落ち着いた閑静な住宅地

  • 販売価格
  • 4,790万円
  • (税込)

間取り図

主寝室はグレーの壁紙で落ち着いた空間に。6帖で広々!
他の寝室も広々で過ごしやすい空間です。
外からの視線を気にせず開放的に過ごせるバルコニーも。

リビング

イエローのスケルトン階段にグリーンのタイルなど彩りある暮らしはいかがでしょう?

寝室

主寝室はグレーの壁紙で落ち着いた空間に。6帖で広々ゆとりがあります。
余白(40px)

ワンフロアでゆったり暮らせる平屋

物件情報

  • 1LDK
  • 敷地面積:168.00㎡(50.82坪)
  • 建築面積:58.79㎡(17.78坪)
  • おすすめ

■玄関には土間があり、収納、作業場、趣味のスペースなど、用途に合わせて自由に使える!

■平屋だから生活導線がコンパクトで効率的!バリアフリーにも対応

■近隣にはスーパー、コンビニ、ドラッグスとが揃ってます。

  • 販売価格
  • 3,380万円
  • (税込)

間取り図

広々とした延床面積58.79㎡

リビング

独立した明るい印象のリビング

キッチン

対面キッチンなのでテーブルまでの配膳もラクラク
余白(20px)

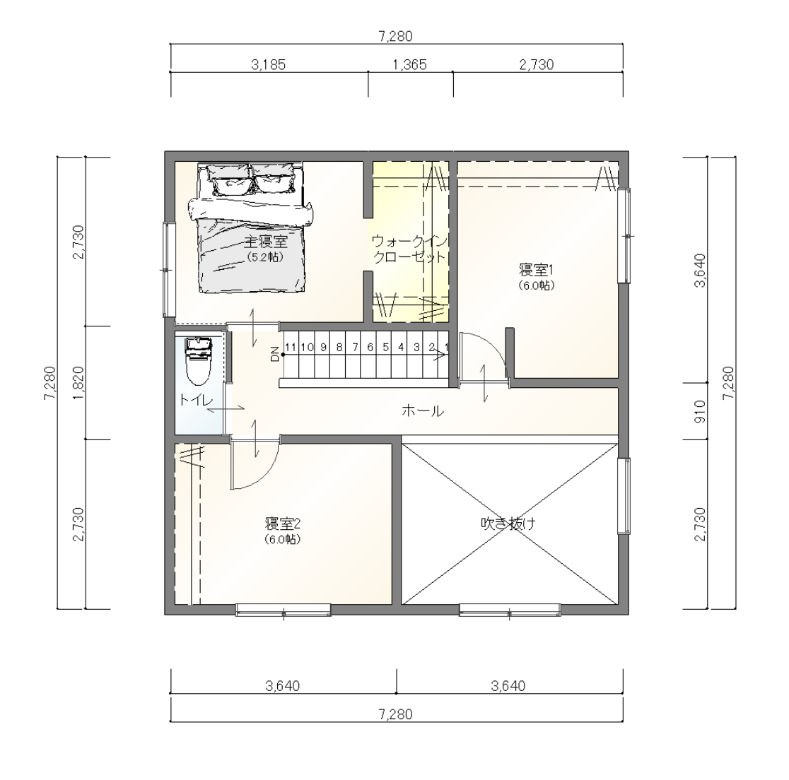
開放感あふれる吹き抜けのある暮らし

物件情報

  • 3LDK
  • 敷地面積:125.65㎡(38.00坪)
  • 建築面積:94.40㎡(28.55坪)
  • おすすめ

■吹き抜けのある開放的なリビング!

■駅まで徒歩約9分と通勤通学にも便利!

■小学校までは徒歩約6分と安心な距離です♪

  • 販売価格
  • 4,300万円
  • (税込)

間取り図

玄関にはシューズインクローク完備ですっきり収納。
2階の主寝室にはたくさん入るウォークインクローゼットも完備!

リビング

吹き抜けのある開放的なリビング!

キッチン

対面キッチンなのでテーブルまでの配膳もラクラク
余白(40px)
どこで開催されるんだろう?

見学会場について

ふじが丘・猪野・中判田・古ヶ鶴
詳しい住所はご予約後にお伝えをさせていただきます。

小さなお子さま連れでも安心。
託児スタッフが対応させていただきます。

お子様連れのお客さまでも安心のキッズルームを完備しています。 ご相談されている間は、スタッフがお子様を見守りますので、安心して家づくりのご相談をして頂けます。
実際の公開ページでは回答部分が閉じた状態で表示されます。

特典について

  • キャンペーン条件・注意事項

    ①事前予約の上で初めてSAKAIに来場頂くお客様1組様につき、Amazonカード10,000円分を1回限りで進呈させていただきます。
    ②対象物件のご契約で、Aeaopのハンドウォッシュ500mlを1回限りで進呈させていただきます。

    【キャンペーン対象条件】
    0.ご予約の際の「事前アンケート」の質問にすべて回答いただける方
    1.担当者からの事前ご連絡に応答いただける方※1
    2.ご家族(入居予定の成人の方)皆様でご来場いただける方(託児もございます)※2
    3.ご来場時に本人確認(運転免許・健康保険)を提示いただけること
    4.23歳以上の方
    5.2時間の打合せ時間を確保できる方
    6.施工エリアにて前向きにお家づくりを検討されていると弊社スタッフが判断した方
    7.1年以内に住宅の建築もしくはキャンペーン対象物件の購入が可能とスタッフが判断した方
    上記、すべての条件を満たされた方が特典の対象となります。

    【キャンペーンに関する注意事項】
    ※1 担当者からの電話連絡をもって、受付完了となります。
    ※2 単身者でお一人でお越しの方は次回お約束の際に特典を贈呈させていただきます。
    ※3 当日予約の方につきましても、次回お約束の際に特典を贈呈させていただきます。
    ※4 オンライン面談は対象外となります。
    ※5 複数店舗へのご来場でも、1回限りの進呈となります。
    ※6 新築もしくはキャンペーン対象物件の購入をお考えの方のみとなります。(リフォームは対象外)
    ※7 過去に、店舗・モデルハウス・イベントのいずれかにご来場いただいたことがある場合は対象外となります。
  • ここをクリックして表示したいテキストを入力してください。

    ここをクリックして表示したいテキストを入力してください。テキストは「右寄せ」「中央寄せ」「左寄せ」といった整列方向、「太字」「斜体」「下線」「取り消し線」、「文字サイズ」「文字色」「文字の背景色」など細かく編集することができます。
お家を見学したい!

見学予約について

日にち
2026/1/24(土)~2/15(日)10:00~17:00
時間
❶10:00〜 ❷11:00〜 ❸13:00〜 ❹14:00〜 ❺15:00〜 ❻16:00〜 
場所
ふじが丘・猪野・中判田・古ヶ鶴
キャンペーンについて
諸条件があります。お申し込み前に下記フォームにあるキャンペーン詳細および注意事項を必ずご確認ください。
見出し
ここをクリックして表示したいテキストを入力してください。テキストは「右寄せ」「中央寄せ」「左寄せ」といった整列方向、「太字」「斜体」「下線」「取り消し線」、「文字サイズ」「文字色」「文字の背景色」など細かく編集することができます。
お電話または、下記フォームよりご予約下さいませ。
電話予約可能時間 10:00〜18:00
水曜日定休
フォームから送信された内容はマイページの「フォーム」ボタンから確認できます。
送信したメールアドレスでお知らせ配信に登録する
見学会を予約する
利用規約・プライバシーポリシーをお読みの上、同意して送信して下さい。